Habitations petites (moins de 50m2) en bois en Kit je recherche pour faible budget. Merci de votre aide si vous en avez connaissance.
je suis en train de demander des devis sur eurochalets
Merci Ecureuil … tu me diras quand ils te répondront ? Merci de ton aide
Finalement je ne sais pas si je vais faire avec eux car la communication ne passe pas bien. Je veux du 44mm et j’ai un devis en 60mm. Je demande pourquoi le prix double par rapport au site internet sachant que je ne veux que les ouvertures pour les ouvrants et une cloison sans porte…
26660 € en 60mm et j’en ai un autre en 44/100/44 à 28512 € sachant que j’ai demandé en 44mm si possible. Soit ce n’est pas possible en 44 soit il n’a pas compris. Du coup je regarde avec une autre entreprise https://www.abris-co.fr/ où c’est une maison en osb, j’ai modifié un peu mon plan et je ferai mon cellier à part. J’arrive à 16000€ et tout prévu pour mettre mon isolation moi-même. J’ai un rdv tél jeudi. Ils sont dans le jura
Ho super !!! merci pour ta réponse. C’est très clair et j’ai l’impression que je suis dans la même démarche que toi
Je veux faire au maximum moi même. Tu veux dire que tu as prévu le coffrage (inclus dans le devis) pour mettre ton isolation toi-même ? j’imagine que tu vas faire l’élec et la plomberie toi-même
…. merci beaucoup en tout cas pour tes réponses. J’étais justement en train d’étudier sur le site d’Euro chalet …. je vais donc plancher sur Abris-co.fr
et au fait, tu as pris rv avec un conseiller pour faire ton plan ?
Oui j’installe tout moi-même isolation, électricité en panneaux solaires, plomberie, sol. Avec cette boîte effectivement le coffrage pour mettre l’isolation est tout fait.
J’ai fait mon plan toute seule sur fusion 360° que j’utilise normalement en impression 3D. Ca me permet ensuite de mettre mes meubles pour voir le rendu
whaou !!! super. Moi je n’en suis pas là mais je vais apprendre
donc selon ton plan fait toi même, tu arrives à quelle surface habitable ? et dans les 16 000 € c’est juste le prix de la construction avec coffrage ? ou inclus avec isolation, élec en panneaux solaires, plomberie, sol … tu te fournis où pour tout ça si je peux abuser de ton aide ?
Et tu vas auto construire dans quel coin ? tu vas te faire aider ? moi ça m’intéresse d’aider si je peux ![]()
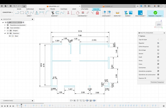
ça me fait une surface habitable de 44m2, je mets mon cellier à part car je veux avoir une température constante de 16 à 18° pour mes bocaux.
16000€ c’est la photo ci-jointe
Et j’achète l’isolation, la plomberie, les panneaux, les batteries…. tout sur internet.
Pour la laine de bois, je vais commencer à en chercher sur le bon coin. Pour le reste je compare les prix.
Je vais construire dans le 88 (Vosges) à Thiraucourt, à 5km de Mirecourt, 35km d’Epinal.
Je vais avoir un peu d’aide de ma soeur qui bricole autant que moi.
Voilà ce que ça donne avec le logiciel (gratuit)
Whaou !!! tu es douée
et BRAVO !! j’étais en train de regarder si je pouvais télécharger le logiciel gratuit de Fusion 360 qd une amie est venue pour qu’on aille balader les chiennes et juste je rentre. Tu as pu le télécharger gratuitement ? En tout cas, bravo et moi aussi je veux faire des bocaux et donc avoir une réserve à température constante et pas trop chaude …. tu vas le faire en paille ? semi-enterré ? ou autre ….
et au fait, sur twiza, ils proposent des commandes groupées, ne serait-ce pas plus intéressant pour toi ?
Bonjour, je viens d’avoir abris-co.fr au téléphone. Ils sont très sympa, très à l’écoute et respectent le devis fait en ligne. Le montage semble très facile à deux. Idéalement, vous faites votre plan sur le site avec les ouvertures et vous prenez un rdv téléphonique pour répondre à toutes les questions;
Je serai à peine au-dessus du devis initial car je veux le tour des menuiseries.
Ils font le permis de construire et si je ne me sens pas pour le montage, ils me dirigent vers une entreprise locale. Une fois le devis signé, je reçois les plans de maçonnerie pour la dalle et je vois avec un maçon qui suivra à la lettre. Franchement je suis contente de cette première approche.
Si je décide de monter moi-même mon chalet et que vous êtes disponible, ce serait pas mal de venir en mode un peu chantier participatif et une fois que vous vous montez le votre, je viens vous filer un coup de main, sachant que je fais l’électricité et la plomberie
Whaou !! génial ! carrément :))) c’est quoi “le tour des menuiseries” ? en quoi c’est utile si ce n’est pour la finition esthétique ? et la dalle béton est obligatoire ? ne peut-on faire sur pilotis avec des pneus remplis et tassés par exemple ? du coup, le prix qu’ils annoncent sur leur site une fois qu’on a défini les dimensions du chalet comprend “le dépôt du permis de construire et les plans de préparation de l’assise du chalet ?
Vous avez une idée de la date approximative où vous allez construire votre chalet ?
Moi je vais visiter un terrain que j’ai vu sur le plateau ardéchois le 17 octobre car je bosse et à ce moment là j’ai 4 jours de repos ….
J’ai acheté un livre de terre vivante : “Autoconstruire pour rester libre” … je pense qu’il va être super intéressant ![]()
On peut se tutoyer ?
On peut se tutoyer.
le tour des huisseries, est la base pour mettre des fenêtres. Vu que ça doit être précis, je préfère les faire faire.
La dalle en béton n’est pas obligatoire, en fait c’est selon la nature du terrain (chez moi l’étude de sol dit terrains argileux, pas sismique, pas inondable….).
Je commence la construction dès que ma maison est vendue, ce sont les fonds qui vont me permettre de payer.
Le permis de construire se rajoute à la facture mais ils sont 55€ moins cher que les cabinet privé.
Si vous me donnez votre mail, je peut vous envoyer le devis que je viens de recevoir (ils sont rapides)
je viens de répondre en mettant mon adresse mail dans le message mais il est en attente d’approbation ?




